產品中心
|
本系列減壓閥屬于先導活塞式減壓閥。由主閥和導閥兩部分組成。主閥主要由閥座、主閥盤、活塞、彈簧等零件組成。導閥主要由閥座、閥瓣、膜片、彈簧、調節彈簧等零件組成。通過調節調節彈簧壓力設定出口壓力、利用膜片傳感出口壓力變化,通過導閥啟閉驅動活塞調節主閥節流部位過流面積的大小,實現減壓穩壓功能。 本系列產品在普通減壓閥基礎上做了以下改進,加大了活塞面積,改變了節流結構,改變了密封形式,改進了導閥結構和調節彈簧形式,從而從以下幾方面提高了產品的性能。 1、提高了對出口壓力變化的傳感效能,提高了靈敏度,大大降低了因上游壓力變化,流量變化等因素引起的壓力偏差。 2、改善了流線分布,降低了噪聲。 3、改進了密封面結構,延長了密封面壽命。 本產品主要用于蒸汽管路,適用于進口壓力變化大,流量變化大的蒸汽管路。 |
|||||||||||||||||||||||||||||||||||
|
主要技術參數和性能指標:
|
|||||||||||||||||||||||||||||||||||
|
主要零件材料:
|
|||||||||||||||||||||||||||||||||||
|
流量系數(Cv):
|
|||||||||||||||||||||||||||||||||||
|
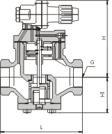
YG43H/Y系列連接尺寸:
|
|||||||||||||||||||||||||||||||||||
